Go to main content

Request for proposal

Pallet rack

Please fill in as many of the fields as possible and then click on "Submit". You can enter additional information for an extended enquiry or individual quotation at the end of the form under "Additional information". Thank you very much!

General data
What would you like to store?
Rack type:
Installation/Use
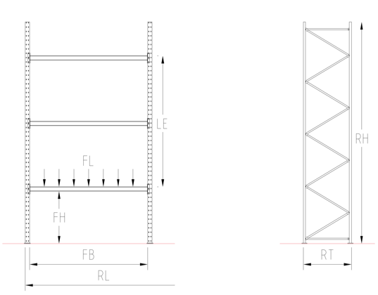
Rack dimensions
(Optional, please see legend for explanation of units).
Load capacity:
(Please refer to the legend for explanation of the units)
For outdoor installation with roof:
Rack colour:
Assembly:
Benefit from expert installation by our trained OHRA installation teams.
Additional information:
Absenden